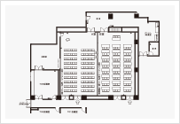
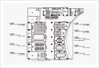
100インチの透過スクリーンを備えた大会議室と、15室の中小会議室は、国際会議の分科会や研修会、講習会、その他各種会議などさまざまな目的に応じて柔軟に対応できます。
施設予約 大会議室・会議室
目的に合わせて16室からチョイス
大会議室・会議室
CONFERENCE ROOMS
施設概要
| 名称/階 | 大会議室 / 7階 |
|---|---|
| 収容人員 | スクール形式198席、シアター形式250席 |
| 床面積 | 260m²(2分割使用可) 幅14.4m、奥行17.0m、天井高5.2m |
| 吊り物 | 美術バトン:正面1本(10m)、側面2本(各5m・分割時使用) |
| 仮設電源盤 | 単相3線 150A×2面 |
| 映像設備 | 100インチ透過型スクリーン1面(リアプロジェクター方式) |
| その他 | ホワイトボード2台、会議案内板2枚、演台、パントリー |
| 留意事項 |
|
| 名称/階 | 会議室 / 5階~7階 | ||||||||||||||||||||||||||||||||||||||||||||||||||||||||||||||||||||||||||||||||||||||||||||||||
|---|---|---|---|---|---|---|---|---|---|---|---|---|---|---|---|---|---|---|---|---|---|---|---|---|---|---|---|---|---|---|---|---|---|---|---|---|---|---|---|---|---|---|---|---|---|---|---|---|---|---|---|---|---|---|---|---|---|---|---|---|---|---|---|---|---|---|---|---|---|---|---|---|---|---|---|---|---|---|---|---|---|---|---|---|---|---|---|---|---|---|---|---|---|---|---|---|---|
| 収容人員 |
|
||||||||||||||||||||||||||||||||||||||||||||||||||||||||||||||||||||||||||||||||||||||||||||||||
| 電力容量 | 20A | ||||||||||||||||||||||||||||||||||||||||||||||||||||||||||||||||||||||||||||||||||||||||||||||||
| その他 | ホワイトボード、会議案内板、受付用机・椅子、茶器、ロビー、パントリー(6階,7階) | ||||||||||||||||||||||||||||||||||||||||||||||||||||||||||||||||||||||||||||||||||||||||||||||||
| 留意事項 |
|
ご利用マニュアル
施設利用料金
| 会議室名 | 収容人員 | 床面積 (m2) |
区分 | 基本料金 (3時間) |
1時間当たり 加算額 |
|
|---|---|---|---|---|---|---|
| スクール | ロの字 | |||||
| 大会議室 | 198 |
110 |
260 |
平日 |
72,930 |
7,150 |
土日祝日 |
90,090 |
7,150 |
||||
| 501会議室 | 27 (24+3) |
24 |
50 |
平日 |
13,200 |
1,100 |
土日祝日 |
16,500 |
1,100 |
||||
| 502会議室 | 21 (18+3) |
18 |
40 |
平日 |
10,560 |
880 |
土日祝日 |
13,200 |
880 |
||||
| 503会議室 | 21 (18+3) |
18 |
40 |
平日 |
10,560 |
880 |
土日祝日 |
13,200 |
880 |
||||
| 601会議室 | 39 (36+3) |
30 |
70 |
平日 |
18,480 |
1,540 |
土日祝日 |
23,100 |
1,540 |
||||
| 602会議室 | 27 (24+3) |
24 |
55 |
平日 |
14,520 |
1,210 |
土日祝日 |
18,150 |
1,210 |
||||
| 603会議室 | - |
12 (舟形) |
50 |
平日 |
13,200 |
1,100 |
土日祝日 |
16,500 |
1,100 |
||||
| 604会議室 | 27 (24+3) |
24 |
50 |
平日 |
13,200 |
1,100 |
土日祝日 |
16,500 |
1,100 |
||||
| 605会議室 | 33 (30+3) |
30 |
65 |
平日 |
17,160 |
1,430 |
土日祝日 |
21,450 |
1,430 |
||||
| 606会議室 | 69 (63+6) |
42 |
90 |
平日 |
23,760 |
1,980 |
土日祝日 |
29,700 |
1,980 |
||||
| 607会議室 | 69 (63+6) |
42 |
95 |
平日 |
25,080 |
2,090 |
土日祝日 |
31,350 |
2,090 |
||||
| 608会議室 | 69 (63+6) |
42 |
95 |
平日 |
25,080 |
2,090 |
土日祝日 |
31,350 |
2,090 |
||||
| 609会議室 | 21 (18+3) |
18 |
40 |
平日 |
10,560 |
880 |
土日祝日 |
13,200 |
880 |
||||
| 701会議室 | 21 (18+3) |
18 |
40 |
平日 |
10,560 |
880 |
土日祝日 |
13,200 |
880 |
||||
| 702会議室 | 21 (18+3) |
18 |
40 |
平日 |
10,560 |
880 |
土日祝日 |
13,200 |
880 |
||||
| 703会議室 | 21 (18+3) |
18 |
40 |
平日 |
10,560 |
880 |
土日祝日 |
13,200 |
880 |
||||
※やむをえない事情にて時間外(22:00〜翌9:00)利用をされる場合は、「1時間当たり加算額」の料金適用が2倍となります。また、時間外人件費および交通費等諸経費が必要となります。
※大会議室はスクール形式(198席)を標準形とし、標準形以外へのレイアウト変更は別途経費負担により、当財団で承ります。
※小会議室のスクール形式の収容人員には、講師席3席(606、607、608会議室は6席)も含まれております。
※607、608会議室についてはシアター形式(100席)にもできます。
※603会議室は舟形テーブル固定式につき、レイアウトの変更はできません。
その他備考
会議室
-
- ・9:00から22:00までの間に、3時間以内で利用する場合、基本料金を申し受けます。
- ・9:00から22:00までの間に、3時間を超えて利用する場合、基本料金に超過した時間数に応じた金額を加えたものとします。なお、1時間以内の利用は、1時間利用したものとみなします。
2分割利用
- 大会議室をA室、B室に2分割して利用する場合、次の利用料金(100円未満四捨五入)を申し受けます。
- 同一利用者がA室、B室を併用利用する場合
A室料金:全室利用の所定料金×0.50
B室料金:全室利用の所定料金×0.50 - 別の利用者がA室又はB室を単独利用する場合
A室料金:全室利用の所定料金×0.70
B室料金:全室利用の所定料金×0.70
- 同一利用者がA室、B室を併用利用する場合
備品料金表(大会議室)
| 部門 | 品名 | 単位 | 料金 | 内容 |
|---|---|---|---|---|
| 照明 | 特殊電源料(1kwにつき) | kw |
495 |
|
| 持込器具(1kwにつき) | kw |
275 |
||
| 音響 | 拡声装置 | 式 |
3,300 |
|
| マイクロフォン(ワイヤレス) | 本 |
1,650 |
※注1 | |
| マイクロフォン(有線) | 本 |
440 |
※注1 | |
| マイクスタンド(大型・卓上型) | 本 |
220 |
||
| カセットデッキ | 台 |
1,540 |
||
| CDプレイヤー | 台 |
1,540 |
||
| MDプレイヤー | 台 |
2,200 |
||
| 映像 | ビデオプロジェクター | 面 |
6,600 |
100インチ (リアプロジェクター方式) |
| S-VHS | 台 |
2,200 |
||
| DVDプレイヤー | 台 |
2,200 |
||
| スクリーン(OHP含む) | 台 |
1,650 |
W1,800×H1,800 | |
| スライドテレビコンバーター | 台 |
3,850 |
||
| その他 | 三折式パーテーション | 式 |
2,200 |
W1,800×H1,800 5枚セット |
| インターネット回線 | 式 |
3,300 |
※注2 |
※上記料金は1日1回あたりの料金です。
※平日、土日祝日とも同じ料金です。上記料金のほか、別途人件費を徴収する場合があります。
※ご利用当日のキャンセルはできません。
※数に限りがありますのでご了承ください。
※注1 マイクロフォンのご利用には、拡声装置が必要です。
※注2 Free Wi-Fiのご利用についてはこちら
付帯サービス料金表
| 部門 | 品名 | 単位 | 料金 | 内容 |
|---|---|---|---|---|
| 映像 | スクリーン2.0m×2.0m自立三脚 | 枚 |
3,300 |
|
| スクリーン4.0m×4.0m吊下式 | 枚 |
11,000 |
||
| レーザーポインター | 本 |
5,500 |
||
| 手元明り | 台 |
550 |
||
| PC対応プロジェクター | 台 |
33,000~ |
||
| 舞台 | 吊看板 3尺×4間(0.9m×7.2m) | 枚 |
44,000 |
|
| 吊看板 3尺×3間(0.9m×5.4m) | 枚 |
41,800 |
||
| 吊看板 2尺×2尺(0.6m×0.6m) | 枚 |
28,600 |
||
| 誘導看板 2尺×2尺(0.6m×0.6m) | 枚 |
5,500 |
||
| 誘導看板 1.5尺×1.5尺(0.45m×0.45m) | 枚 |
4,400 |
||
| 立看板 3尺×6尺(0.9m×1.8m) | 枚 |
22,000 |
||
| 垂れ幕 3尺×12尺(0.9m×3.6m) | 枚 |
13,200 |
||
| 提案台(W0.55m×D0.41m×H0.9m) | 台 |
2,200 |
||
| 平台(W0.9m×D1.8m×H0.3m) | 台 |
1,650 |
※上記料金は1日1回あたりの料金です。
※平日、土日祝日とも同じ料金です。上記料金のほか、別途人件費を徴収する場合があります。
※ご利用当日のキャンセルはできません。
※数に限りがありますのでご了承ください。
備品料金(会議室)
| 部門 | 品名 | 単位 | 料金 | 内容 |
|---|---|---|---|---|
| 音響 | ポータブルアンプ | 式 |
1,650 |
有線マイク1本付属(606・607・608以外) |
| レクチュア台 | 式 |
2,200 |
固定マイク1本付属(606・607・608のみ) | |
| 録音卓 | 式 |
1,650 |
カセットデッキ・マイク2本付属 | |
| マイクロフォン(ワイヤレス) | 本 |
1,650 |
※注1 | |
| マイクロフォン(有線) | 本 |
440 |
※注1 | |
| マイクスタンド(大型・卓上型) | 本 |
220 |
||
| CD−MDラジカセ | 台 |
1,540 |
||
| 映像 | AVワゴン | 式 |
5,500 |
37型TV、DVDプレーヤー |
| DVDプレイヤー | 台 |
2,200 |
||
| スクリーン(OHP含む) | 台 |
1,650 |
W1,800×H1,800 | |
| その他 | 三折式パーテーション | 枚 |
550 |
W1,800×H1,800 |
| インターネット回線 | 式 |
3,300 |
※注2 |
※上記料金は1日1回あたりの料金です。
※平日、土日祝日とも同じ料金です。上記料金のほか、別途人件費を徴収する場合があります。
※ご利用当日のキャンセルはできません。
※数に限りがありますのでご了承ください。
※注1 マイクロフォンのご利用には、ポータブルアンプまたはレクチュア台が必要です。
レクチュア台は、606、607、608の各会議室でのみ利用可能。その他の会議室ではポータブルアンプ利用。
※注2 Free Wi-Fiのご利用についてはこちら
付帯サービス料金表
| 部門 | 品名 | 単位 | 料金 | 内容 |
|---|---|---|---|---|
| 映像 | スクリーン2.0m×2.0m自立三脚 | 枚 |
3,300 |
|
| レーザーポインター | 本 |
5,500 |
||
| 手元明り | 台 |
550 |
||
| PC対応プロジェクター | 台 |
16,500~ |
||
| 舞台 | 吊看板 2尺×2間(0.6m×3.6m) | 枚 |
28,600 |
|
| 提案台(W0.55m×D0.41m×H0.9m) | 台 |
2,200 |
※上記料金は1日1回あたりの料金です。
※平日、土日祝日とも同じ料金です。上記料金のほか、別途人件費を徴収する場合があります。
※ご利用当日のキャンセルはできません。
※料金は変更になることがありますのでご了承ください。
予約利用可能日
大会議室
中・小会議室
直近の会議室ご予約に関するお問い合わせはこちら
-
| 会議室名 | 収容人員 | 08 | 09 | 10 | 11 | 12 | 13 | 14 | 15 | 16 | 17 | 18 | 19 | 20 | 21 | 22 | |
|---|---|---|---|---|---|---|---|---|---|---|---|---|---|---|---|---|---|
| スクール | 口の字 | ||||||||||||||||
| 大会議室 | 198 | 110 | |||||||||||||||
| 501 | 27 | 24 | |||||||||||||||
| 502 | 21 | 18 | |||||||||||||||
| 503 | 21 | 18 | |||||||||||||||
| 601 | 39 | 30 | |||||||||||||||
| 602 | 27 | 24 | |||||||||||||||
| 603 | - | 12(舟形) | |||||||||||||||
| 604 | 27 | 24 | |||||||||||||||
| 605 | 33 | 30 | |||||||||||||||
| 606 | 69 | 42 | |||||||||||||||
| 607 | 69 | 42 | |||||||||||||||
| 608 | 69 | 42 | |||||||||||||||
| 609 | 21 | 18 | |||||||||||||||
| 701 | 21 | 18 | |||||||||||||||
| 702 | 21 | 18 | |||||||||||||||
| 703 | 21 | 18 | |||||||||||||||
○:ご予約いただけます
×:ご予約いただけません
ご注意ください
この情報は、-年-月-日18:00現在のものです。
それ以降の利用申込等の情報は反映されておりません。
上記カレンダーは祝日には対応しておりません。
大会議室
ご覧になりたいレイアウトをクリックしてください。
PDF形式でダウンロードできます。
※レイアウト変更の際は、別途費用が必要となる場合がございます。

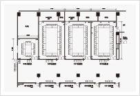
7F_大会議室定型スクール198席
PDFダウンロード

7F_大会議室シアター250席
※別途レイアウト変更料が必要です。
PDFダウンロード

7F_大会議室ロの字114席
※別途レイアウト変更料が必要です。
PDFダウンロード

7F_大会議室A・B分割
※別途レイアウト変更料が必要です。
PDFダウンロード
会議室

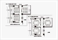
5F_501~503会議室
PDFダウンロード

6F_601~605会議室(スクール)
PDFダウンロード

6F_601~605会議室(ロの字)
PDFダウンロード

6F_606~609会議室(スクール)
PDFダウンロード

6F_606~609会議室(ロの字)
PDFダウンロード

6F_607~608会議室シアター
PDFダウンロード

7F_701~703会議室
PDFダウンロード

フロア全体
- お問い合わせ
-
(公財)アクロス福岡 施設サービスグループ
〒810-0001 福岡市中央区天神1-1-1 西館8F
インターネットでのお問い合わせ
お問い合わせフォームお電話でのお問い合わせ
092-725-9113
※受付時間 10:00〜18:00(12/29〜1/3を除く)FAXでのお問い合わせ
092-725-4621



















































