イベントホール - 施設予約 - アクロス福岡
Language 検索
  • Facebook
  • Instagram
  • YouTube
  • Twitter

施設予約

施設予約 イベントホール

自在に動くステージがあらゆるイベントに対応

イベントホール

EVENT HALL

客席数:最大900席(ロールバック式420席、可動席480席)

分割昇降式ステージと可動席の組み合わせにより多彩なイベントが可能な多目的ホールです。
各種展示会、コンサート、ファッションショー、講演会、パーティー、演劇などさまざまな目的に対応可能な多機能空間としてご利用いただけます。

施設概要

名称/階 イベントホール / 地下2階
ホール形式 多目的ホール(2分割使用可)
客席・舞台形式 分割昇降式ステージにより変化ある舞台形式に対応
全面平土間使用可能
客席数 最大900席(ロールバック式420席、可動席480席)
ホール面積 700m²(幅22.2m、奥行30.6m、天井高5.6m(内法))
2分割使用 A室:380m²(舞台側、大型画面あり)
B室:310m²(ロールバック式椅子側、ロールバック式椅子を収納して利用)
舞台機構 迫り舞台:分割昇降式(12分割、1辺3.6m)、高さ:床レベルから80cmまで
天井:昇降トラス45基、固定18基
吊り物:美術バトン5本
舞台照明設備 許容量480KVA 回路数246回線(客席30回線を含む)
映像設備 ビデオプロジェクター200インチ1面(リアプロジェクション方式)
16ミリ映写機(常設の映写スクリーンを使用)
カメラコンセント4ヵ所、TVカメラ4台
※AVコントロール室を経由して、イベントホールの映像情報を館内他施設へ提供可能
楽屋等 楽屋:2室(定員3人)トイレ・シャワー付き
楽屋:1室(定員3人)トイレ・シャワー付き
控室:1室(定員12人)化粧前椅子7、共用シャワー室有り
控室:1室(定員16人)化粧前椅子11、共用シャワー室有り
応接控室:1室(定員5人)
主催者控室:1室(定員8人)当日券売場兼用
搬入用EV 積載可能寸法:(幅2.5×奥行9.5×高さ3.2m)
最大積載可能重量15.5トン
会議利用 会議机(L180×W60×H70cm)120台
幕板付机(L180×W60×H70cm)25台

パーティー利用 円卓(Φ90×H70cm)30台
料理卓(L180×W90×H70cm)30台
その他 ロビー、クローク、パントリー(2室)、調光室、音調室
留意事項
  • ・ホールのご利用にあたっては、シアター形式(900席)または全面平土間を標準形とし、標準形以外へのレイアウト変更は別途経費負担により、当財団で承ります。
  • ・太鼓などの重低音が響く音楽公演、大音量のファッションショーなどについては、他の会場に影響をおよぼすためご予約をお断りする場合がございます。詳しくは、財団窓口へお問い合わせください。
  • ・ホールの床面はフローリングです。
  • ・ホールおよびロビー内での飲食については、必ず事前に当財団にご相談ください。
  • ・物品販売については、あらかじめ当財団の承認を受けてください。

ご利用マニュアル

施設利用料金

(単位:円・税込)
  利用区分
  入場料金等区分 利用内容 午前
(9:00~12:00)
午後
(13:00~16:00)
夜間
(17:00~22:00)
平日 0円~1,000円
(学会、個人・非営利団体主催イベント)
本番利用 62,700 113,300 169,400
リハーサル等利用 43,890 79,310 118,580
1,001円~3,000円 本番利用 81,400 147,400 221,100
リハーサル等利用 56,980 103,180 154,770
3,001円~または非商業展示の場合
(合同企業説明会等)
本番利用 106,700 192,500 288,200
リハーサル等利用 74,690 134,750 201,740
商業展示の場合 本番利用 160,600 289,300 433,400
リハーサル等利用 112,420 202,510 303,380
土日
祝日
0円~1,000円
(学会、個人・非営利団体主催イベント)
本番利用 75,900 136,400 203,500
リハーサル等利用 53,130 95,480 142,450
1,001円~3,000円 本番利用 97,900 177,100 265,100
リハーサル等利用 68,530 123,970 185,570
3,001円~または非商業展示の場合
(合同企業説明会等)
本番利用 128,700 231,000 346,500
リハーサル等利用 90,090 161,700 242,550
商業展示の場合 本番利用 192,500 346,500 520,300
リハーサル等利用 134,750 242,550 364,210
連続利用
  利用区分
  入場料金等区分 利用内容 終日
(9:00~22:00)
午前+午後
(9:00~16:00)
午後+夜間
(13:00~22:00)
平日 0円~1,000円
(学会、個人・非営利団体主催イベント)
本番利用 311,300 158,400 254,430
リハーサル等利用 241,780 123,200 197,890
1,001円~3,000円 本番利用 404,800 205,920 331,650
リハーサル等利用 314,930 160,160 257,950
3,001円~または非商業展示の場合
(合同企業説明会等)
本番利用 529,100 269,280 432,630
リハーサル等利用 411,180 209,440 336,490
商業展示の場合 本番利用 794,200 404,910 650,430
リハーサル等利用 618,310 314,930 505,890
土日
祝日
0円~1,000円
(学会、個人・非営利団体主催イベント)
本番利用 374,000 191,070 305,910
リハーサル等利用 291,060 148,610 237,930
1,001円~3,000円 本番利用 486,200 247,500 397,980
リハーサル等利用 378,070 192,500 309,540
3,001円~または非商業展示の場合
(合同企業説明会等)
本番利用 635,800 323,730 519,750
リハーサル等利用 494,340 251,790 404,250
商業展示の場合 本番利用 953,700 485,100 780,120
リハーサル等利用 741,510 377,300 606,760
延長(1時間あたり)
  利用区分
  入場料金等区分 利用内容 午前~午後
(12:00~13:00)
午後~夜間
(16:00~17:00)
利用時間外
(22:00~9:00)
平日 0円~1,000円
(学会、個人・非営利団体主催イベント)
本番利用 37,730 33,880 50,820
リハーサル等利用 26,400 23,760 35,530
1,001円~3,000円 本番利用 49,170 44,220 66,330
リハーサル等利用 34,430 30,910 46,420
3,001円~または非商業展示の場合
(合同企業説明会等)
本番利用 64,130 57,640 86,460
リハーサル等利用 44,880 40,370 60,500
商業展示の場合 本番利用 96,470 86,680 130,020
リハーサル等利用 67,540 60,720 90,970
土日
祝日
0円~1,000円
(学会、個人・非営利団体主催イベント)
本番利用 45,430 40,700 50,820
リハーサル等利用 31,790 28,490 35,530
1,001円~3,000円 本番利用 59,070 53,020 66,330
リハーサル等利用 41,360 37,070 46,420
3,001円~または非商業展示の場合
(合同企業説明会等)
本番利用 77,000 69,300 86,460
リハーサル等利用 53,900 48,510 60,500
商業展示の場合 本番利用 115,500 104,060 130,020
リハーサル等利用 80,850 72,820 90,970

その他備考

利用区分
  • 利用区分(「午前」、「午後」、「夜間」に区分した時間帯をいいます)内の一部の時間の利用は、その利用区分のすべてを利用したものとみなします。
入場料金等区分
  • 入場料金とは、入場することに際し徴収される入場の対価およびこれに類するものをいいます。
  • 入場料金に段階があるときは、その最高額をもって料金表を適用します。
  • 連続利用等の催物で、「通し券」で入場料金を徴収する場合は、次の金額を1日または1回当たりの入場料金とみなして、料金表を適用します。
    通し券の料金÷入場できる日数または回数
リハーサル等利用

リハーサルもしくは催物の準備または整理等のため入場者を入れない状態(以下「リハーサル等」といいます)で、ひとつの利用区分の全部を利用する場合、その区分の利用料金は、所定の料金の7割相当額とします。

同一利用日内の2区分連続利用

同一利用日内において、午前および午後または午後および夜間を連続して利用する場合の料金は、各区分の所定の利用料金の合計額の9割相当額とします。 ただし、リハーサル等利用の割引がある場合は、連続利用による割引はいたしません。また、「終日料金」は午前、午後および夜間の各区分の利用料金の合計額よりも割り引いていますが、リハーサル等利用の割引がある場合、終日利用による割引はいたしません。  

超過利用料金
  • 同一利用日内の2区分連続利用以外の利用で、次の時間を前後の利用区分と併せて利用する場合、次の超過料金(100円未満四捨五入)を申し受けます。
    • 12:00〜13:00まで
      当日の「午後」の入場料金区分による利用料金÷3
    • 16:00〜17:00まで
      当日の「夜間」の入場料金区分による利用料金÷5
    • 上記の時間をリハーサル等のため利用する場合は、上記により算定して得た金額の7割相当額とします。
      なお、上記時間の一部の利用は、そのすべてを利用したものとみなします。
  • やむを得ない事情により22:00から翌日の9:00までの間に施設を利用する場合は、1時間ごとに次の超過料金(100円未満四捨五入)を申し受けます。
    「平日・夜間」の利用料金÷5×1.5
    ただし、上記の時間をリハーサル等のため利用する場合は、1時間ごとに、上記により算定して得た1時間当たりの金額の7割相当額を申し受けます。なお、1時間以内の利用は、1時間利用したものとみなします。
2分割利用
  • イベントホールをA室、B室に2分割して利用する場合、次の利用料金(100円未満四捨五入)を申し受けます。
    • 同一利用者がA室、B室を併用利用する場合
      A室料金:全室利用の所定料金×0.55
      B室料金:全室利用の所定料金×0.45
    • A室又はB室を単独利用する場合
      A室料金:全室利用の所定料金×0.75
      B室料金:全室利用の所定料金×0.65

利用例・見積例

備品料金表

(単位:円・税込)
部門 品名 単位 料金 内容
楽屋 楽屋1
2,860
(定員3人)
楽屋2
3,300
(定員3人)
楽屋3
2,860
(定員3人)
応接控室
3,300
(定員5人)
主催者控室
440
(定員8人)
控室1
1,210
(定員12人)
控室2
1,650
(定員16人)
楽器 フルコンサートピアノ(日本製)
9,900
カワイEX(調律が必要)
舞台 演台
880
W835×D555×H1,125
金屏風
2,970
6曲 1双 W750×H2,400
平台
330
4尺×6尺×4寸
(W1,200×D1,800×H120)
めくり台
495
W420×H1,500
国旗
770
W900×H1,350
県旗
770
W900×H1,350
譜面台
110
おりたたみ式
長机
165
W1,800×D600×H700
長机(幕板付き)
165
W1,800×D600×H700
長机(料理台用)
165
W1,800×D900×H700
丸テーブル
220
900ø・H700mm
椅子
55
 
照明 照明 Aセット
7,700
ダウンライト
照明 Bセット
11,000
100kwまで
アッパーホリゾントライト
550
 
ロアーホリゾントライト(300W)
2,200
 
ロアーホリゾントライト(130W)
770
 
ピンスポットライト(2kw)
3,740
クセノン
ピンスポットライト(1kw)
2,970
ハロゲン
スポットライト(1kw未満)
330
 
スポットライト(1kw)
550
 
スポットライト(1.5kw)
770
 
スポットライト(2kw)
1,100
 
ミラーボール
2,970
(600ø)
ミラーボール
1,540
(300ø)
効果用スポットライト(1kw)
880
 
エフェクトマシン
1,100
 
照明持込料
13,200
持込卓がある場合
(1日あたりの料金)※注1
カラーフィルター
330
(1催事あたりの料金)※注2
特殊電源料(1kwにつき)
kw
495
 
持込器具(1kwにつき)
kw
275
 
音響 拡声装置
5,500
 
移動型操作卓
4,400
カセット、CD付
カセットテープレコーダー
1,540
 
MDプレイヤー
2,200
 
CDプレイヤー
1,540
 
マイクロフォン(ワイヤレス)
2,200
 
マイクロフォン(コンデンサ)
1,430
 
マイクロフォン(有線)
880
 
マイクスタンド(大型)
220
 
マイクスタンド(その他)
220
 
移動型スピーカー(中型)
1,650
 
移動型スピーカー(小B型)
1,100
 
PA持込料
15,400
持込卓がある場合
(1日あたりの料金)※注1
録音録画料
6,600
 
中継ミキサー室
6,600
 
映像 ビデオプロジェクター
1面
17,600
200インチ
(リアプロジェクター方式)
S-VHS
2,200
 
DVDプレーヤー
2,200
 
スクリーン
4,730
9m×4.5m、巻取式
撮影用カメラ
14,300
 
その他 インターネット回線
3,300
(1日あたりの料金)※注1
備考
※料金は1利用区分(午前、午後、夜間の1区分)あたりの料金です。
※注1(1日あたり)とは1日を通して1利用区分のみの料金です。
※注2(1催事あたり)とは日数にかかわらず施設利用期間中を通して1利用区分のみの料金です。
・平日、土日祝休日は同じ料金です。
・上記料金のほか、別途人件費を徴収する場合があります。
・調律(基本ピッチ442Hz)にかかる時間(約2時間)は利用時間に含みます。
ホームページからの予約受付可能日(第2次受付):

第1次受付についてはご利用開始月の2年前からお問い合わせ可能です。詳しくはこちらをご覧ください。

○:ご予約いただけます
×:ご予約いただけません

ご注意ください

この情報は、-年-月-日18:00現在のものです。
それ以降の利用申込等の情報は反映されておりません。
上記カレンダーは祝日には対応しておりません。

  • PHOTO

    シアター形式(900席)
  • PHOTO

    シアター形式(720席)
  • PHOTO

    昇降式ステージ利用
    (ロールバック式420席)
  • PHOTO

    昇降式ステージ利用(680席)
  • PHOTO

    PHOTO

    ファッションショー・ヘアショー利用例

  • PHOTO

    PHOTO

    平土間(展示会・物産展・合同会社説明会等)
  • PHOTO

    スクール形式

レイアウトプラン

ご覧になりたいレイアウトをクリックしてください。 PDF形式でダウンロードできます。
※レイアウト変更の際は、別途費用が必要となる場合がございます。

関係資料

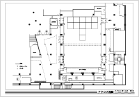
全体図(1/200)
全体図(1/200)
PDFダウンロード

ロビー
ロビー
PDFダウンロード

断面図
断面図
PDFダウンロード

舞台機構仕様
舞台機構仕様
PDFダウンロード

[照明]基本吊
[照明]基本吊
PDFダウンロード

[映像]設備詳細
[映像]設備詳細
PDFダウンロード

[舞台]備品
[舞台]備品
PDFダウンロード

搬入搬出案内
搬入搬出案内
PDFダウンロード

お問い合わせ

(公財)アクロス福岡 施設サービスグループ

〒810-0001 福岡市中央区天神1-1-1 西館8F

インターネットでのお問い合わせ
お問い合わせフォーム

お電話でのお問い合わせ
092-725-9113
※受付時間 10:00〜18:00(12/29〜1/3を除く)

FAXでのお問い合わせ
092-725-4621

ユーザーログイン・新規登録

ログアウト≫